În apropierea centrelor de afaceri şi industrie, parc sportiv în Salca
În vecinătatea parcurilor Salca I și Salca II, a Centrului de Afaceri Trade Center și a hipermarketului Lotus Center, sunt în curs de desfăşurare lucrările de amenajare a Parcului Sportiv Salca III.
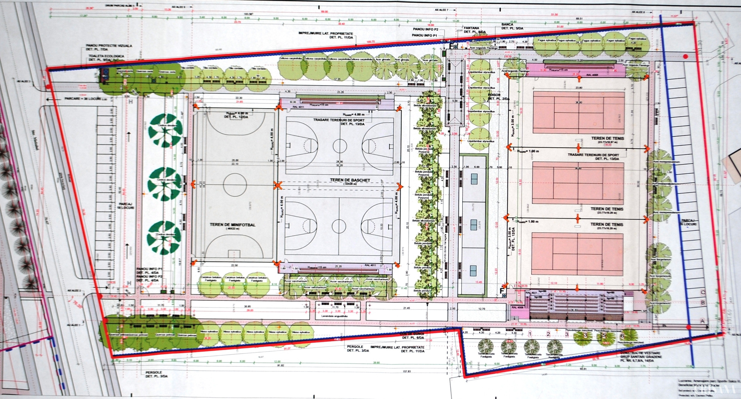
Amenajat pe un teren viran, folosit anterior pentru depozitarea molozului rezultat din demolări, Parcul Sportiv Salca III va oferi posibilităţi pentru desfăşurarea unor activităţi sportive şi de agrement. Având o suprafaţă de 13.000 mp, parcul va fi prevăzut cu trei terenuri de tenis, două terenuri de baschet, un teren de minifotbal, trei terenuri destinate tenisului de masă, iar ca funcţiuni anexe se propune un acces carosabil cu parcare, un foişor, două pergole, trei tribune, grupuri sanitare, vestiare, un spaţiu tehnic pentru asigurarea utilităţilor, precum şi un mini-bufet.
Lucrările la Parcul Sportiv Salca III au fost demarate la sfârșitul lunii iunie și, conform celor prevăzute în proiect, vor fi finalizate la șase luni de la începere. Potrivit Primăriei Oradea, în momentul de față, înlăturarea stratului vegetal, săpăturile în vederea aducerii la cotă și nivelarea terenului au fost realizate într-un procent de 95%. „Împrejmuirea terenurilor de sport este de asemenea aproape de finalizare, stâlpii perimetrali și separatorii fiind deja montați. Platforma de parcare, a cărei suprafață este de 900 mp, este finalizată în procent de 50%. Din această suprafață, 860 mp reprezintă aria carosabilă până la limita de proprietate, iar 40 mp suprafața de racord cu str. Meiului, dinspre care se va face accesul principal în parc. Au fost, de asemenea, executate fundațiile stâlpilor de susținere pentru gradene, vestiare, foișor și pergole, precum și cele pentru stâlpii ornamentali, pe care vor fi montate corpurile de iluminat cu lămpi cu vapori de sodium. Se lucrează la montarea instalației electrice și racordarea apei de la rețeaua existentă până la vestiare”, se menţionează într-un comunicat al municipalităţii orădene.
Lucrările de amenajare a Parcului Sportiv Salca III au fost proiectate de Pro-Arh Oradea şi sunt executate de către asocierea formată din firmele Abed Nego şi Sport Arena. Ordinul de începere a lucrărilor a fost emis în data de 27.06.2017, valoarea contractului fiind de 3.664.361,89 lei fără TVA.



Comentarii
Nu există nici un comentariu.