Beiuș. Soluții la problema locativă - Noi locuințe pentru tineri
În urmă cu mai bine de un an, pe 9 februarie 2023, pe site-ul Primăriei Municipiului Beiuș apărea un comunicat de presă intitulat „PNRR: Fonduri pentru România modernă și reformată”, prin care edilii beiușeni anunțau „implementarea proiectului C10-I2-70 intitulat «Construirea de locuințe pentru tineri, în Municipiul Beiuș, Județul Bihor» depus în cadrul apelului de proiecte PNRR/2022/C10/I2, Runda 1 a Componentei 10 - Fondul local din cadrul Programului Național de Redresare și Reziliență”, cu o valoare totală de 8.600.148,89 lei cu TVA, din care 7.227.015,87 lei reprezintă valoarea eligibilă din PNRR (fără TVA), iar 1.373.133,02 lei este TVA aferentă cheltuielilor eligibile din PNRR.
Același comunicat prezenta și obiectivul proiectului: „Construirea de locuințe nZEB plus - pentru tineri - cod 025b - Construirea de noi clădiri eficiente energetic (40 % Climate Tag și 40 % Environmental Tag), respectiv cod 055bis – Alte tipuri de infrastructuri TIC, inclusiv resurse/echipamente informatice la scară largă, centre de date, senzori și alte echipamente fără fir care respectă criteriile de reducere a emisiilor de carbon și de eficiență energetică (100% Digital Tag)”.
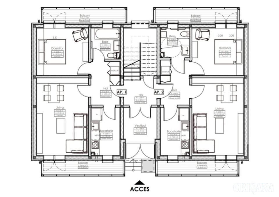
Recent, Primăria Beiuș a anunțat semnarea, la 5 martie, a contractului de lucrări pentru proiectul „Construirea de locuințe pentru tineri, în Municipiul Beiuș, județul Bihor”, finanțat prin Planul Național de Redresare și Reziliență. Cu o durată a contractului de execuție a lucrărilor de 12 luni, „acest proiect vizează construirea a 24 de apartamente pentru tineri - compuse din living, dormitor, bucătărie, baie, hol și 2 balcoane, fiecare apartament având suprafața de aproximativ 60 de mp”.
Administrația locală beiușeană evidențiază, totodată, avantajele locuințelor de tip nZEB plus: „Cele 4 blocuri (parter+etaj+mansardă) de locuințe vor fi construite pe strada Târgul Mare (lângă viitoarea creșă) și vor fi construite la standardul nZEB plus - Clădire cu consum de Energie aproape Zero - altfel spus clădiri cu performanță energetică foarte ridicată. Casele cu consum aproape zero (nZEB) sunt casele viitorului. Toți parametrii energetici ai unei case cu consum aproape zero sunt controlabili de la distanță, se stochează și analizează permanent.
Pe lângă efectele benefice pe termen lung asupra mediului, beneficiarii unei case nZEB vor simți avantajele imediate la capitolul costuri de întreținere. Factura unei case cu consum aproape zero are minus în față sau cel puțin zero. De fapt, casa viitorului, casa nZEB nu doar că nu are facturi lunare, ci are eventual chiar încasări. Casele nZEB sunt case care folosesc tehnologii inteligente și de aceea ele au cel mai puțin aer viciat”.



Comentarii
Nu există nici un comentariu.